Wonga Belle Beach House | Casa en Wonga
Casa




Tarifas disponibles:
4 Habitación Casa en Wonga Beach, Wonga
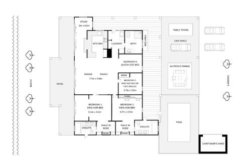
Wonga Belle Beach House, que cuenta con una terraza con vistas al mar, piscina al aire libre y jardín, se encuentra en Wonga, cerca de Wonga Beach y a 18 km de Garganta de Mossman. La casa o chalet, que tiene parking privado gratis, está en una zona en la que se pueden practicar actividades como senderismo, pesca y ping pong. Esta casa o chalet con aire acondicionado consta de 4 dormitorios, una sala de estar, una cocina totalmente equipada con nevera y cafetera, y 3 baños con bidet y ducha. Hay TV de pantalla plana con canales por cable, además de iPad. En la casa o chalet se puede usar la barbacoa. Crystalbrook Superyacht Marina está a 36 km del alojamiento, y Rainforest Habitat Wildlife Sanctuary está a 33 km. El aeropuerto (Aeropuerto de Cairns) está a 90 km.
Wonga Belle Beach House se encuentra en Wonga.
Este 4 Dormitorios Casa es adecuado para turistas y viajeros. Tiene varias comodidades que garantizarían su comodidad. Estas comodidades incluyen: Actividades deportivas, Barbacoa/Cocina al aire libre, Lavandería, y varios otros. Esta es una propiedad clasificada 4 Star y tiene más de 23 reviews con el puntaje promedio de 8.9 . ¿Llegar a Wonga y necesitar un lugar para quedarse? Ya sea para el trabajo o por el ocio, considere quedarse en este Casa para su próxima visita, Seguramente te encantará.
Puede verificar las revisiones y la descripción de este 4 Dormitorios Casa Si desea obtener más información sobre este lugar Hotala.ar en Wonga. Estos detalles son Auténtico, como son proporcionados por nuestro socio, Booking.com.
Este Wonga Belle Beach House en Wonga está bien equipado y tiene todo Instalaciones que se han enumerado a continuación. Tenga en cuenta que estos detalles fueron compartidos por Booking.com para la lista "Wonga Belle Beach House". Confiamos únicamente en sus detalles compartidos y somos considerados "precisos". Si tiene alguna preocupación sobre el información o precisión que describe esto Casa, por favor déjanos saber.
Comodidades
Descripción general de las instalaciones
-
Proporciona factura
-
WiFi
-
WiFi gratis
-
Internet
-
Piscina al aire libre
-
Terraza / solárium
-
Mobiliario exterior
-
Piscina al aire libre (todo el año)
-
Zona de pícnic
-
Jardín
-
Barbacoa
Políticas
Reseñas
Reseñas
Disposición de la habitación
Información de la habitación | Comodidades |
---|---|
Casa
Tipo de habitación:
Casa o chalet
El tamaño de la habitación:
300 m2
1 Cama doble grande
Cama
1 Sofá cama
Cama
1 Cama doble grande
Cama
1 Cama individual
Cama
1 Cama doble grande
Cama
1 Cama doble grande
Cama
|
Comida y bebidaTetera / cafeteraBañoArtículos de aseo gratis, Acondicionador, Baño adicional, Ducha, Champú, Toallas, Ducha a ras de suelo, Secador de pelo, Aseo adicional, Baño privado, Papel higiénico, Bidet, WC, Gel de ducha, Bañera o ducha, Aseo compartidoEquipamiento audiovisual y tecnológicoDispositivo de WiFi portátil, Radio, Canales de pago, TV de pantalla plana, Servicio de streaming (como Netflix), TV, Videojuegos, iPad, Canales por cableGeneralPlancha para ropa, Utensilios de planchado, Papeleras, Suelo de baldosa / mármol, Acceso con llave, Ventilador, Detector de humo, Aire acondicionado, Extintor, Entrada privada, MosquiteraCocinaCafetera, Utensilios de cocina, Fogones, Lavavajillas, Horno, Copas de vino, Secadora de ropa, Cocina, Mesa de comedor, Nevera, Lavadora, Trona, Microondas, Hervidor eléctrico, Productos de limpieza, TostadoraZona de estarZona de comedor, Sofá, Escritorio, Zona de estarExterioresMuebles de exterior, Piscina privada, Terraza, Patio, Zona de comedor exterior, BarbacoaHabitaciónVestidor, Ropa de cama, ArmarioVistasVistas al jardín, Vistas, Vistas al mar, Vistas a la piscinaAccesibilidadDucha adaptada para sillas de ruedas, Toda la unidad accesible en silla de ruedas, Toda la unidad en la planta bajaCaracterísticas del edificioIndependienteInstalaciones de la habitaciónAdaptador, Enchufe cerca de la cama, Cama plegable, Almohada hipoalergénica, Sofá cama, Tendedero, Almohada (sin plumas), Perchero, Almohada de plumasOferta de ocio y servicios para familiasJuegos de mesa / puzlesPiscina y bienestarToallas para la piscina, Piscina de agua salada, Cubierta para piscina, Piscina climatizada, Piscina con vistas, Zona poco profundaInternetVideoconsola PS4Distanciamiento físicoAire acondicionado individual para cada alojamientoLimpieza y desinfecciónDesinfectante de manos |
Preguntas frecuentes
¿Es esto Wonga Belle Beach House amigable para las mascotas para los invitados?
No, las mascotas no están permitidas en esta propiedad. permitido en esta propiedad.
¿A qué hora es el check-in y el check-out en Wonga Belle Beach House?
La hora de entrada para Wonga Belle Beach House comienza a contar desde 3:00 PM y la hora de salida es hasta 10:00 AM. Sin embargo, el check-in temprano o el check-out tardío a veces se pueden negociar entre el huésped y el propietario o el administrador de esta propiedad.
¿El Wonga Belle Beach House tiene una piscina?
No, esta Wonga Belle Beach House no tiene piscina. Vea los detalles sobre la disponibilidad de piscina interior o privada y otras instalaciones.
¿Cuánto cuesta por noche quedarse en Wonga Belle Beach House?
Las mejores tarifas para Wonga Belle Beach House comienzan desde $430 por noche con incluye Estacionamiento, Mascota amigable, Vista, Actividades deportivas, Barbacoa/Cocina al aire libre, Lavandería, Aire acondicionado, Vista al océano, Balcón/Terraza, Frente al mar, Accesibilidad, Seguridad, Servicios de invitado, Internet, Piscina, Silla de ruedas accesible, Servicios de negocios, Niño amigable con todas las demás instalaciones. Hotala.ar coincide con todos los viajeros con su hotel, resort o alquiler perfecto y si viaja con un grupo, amigos, familiares o mascotas.
¿Es Wonga Belle Beach House un lugar familiar para quedarse?
Según la información que hemos recibido del propietario o nuestro socio, esta no se considera una propiedad familiar. Según lo informado por el propietario o gerente, el casa no ha especificado que los niños son bienvenidos. Consulte los detalles sobre la idoneidad de su familia o consulte la propiedad para obtener más información.
¿Es el Wonga Belle Beach House silla de ruedas accesible u ofrece servicios para invitados discapacitados?
Según la información recibida de nuestro socio, Wonga Belle Beach House no ha especificado que sea accesible para sillas de ruedas. Un ascensor especificado como disponible en la propiedad. Los detalles de accesibilidad específicos se pueden abordar en la sección Detalles de la propiedad de esta página.
¿Cuál es la política mínima de estadía nocturna para el Wonga Belle Beach House?
Con base en la información reportada por el propietario o administrador, el Wonga Belle Beach House indica 1 day política de permanencia en esta casa. Se advierte a los huéspedes que la política de estadía mínima puede diferir según la temporada o la disponibilidad y puede quedar a discreción del propietario o gerente.
¿Qué política de cancelación está en su lugar para Wonga Belle Beach House?
Según la información proporcionada por el propietario o administrador, los detalles de la política de cancelación de Wonga Belle Beach House son los siguientes: Política de cancelación Se advierte a los huéspedes que la política de cancelación puede diferir según la temporada, la disponibilidad o las restricciones de viaje actuales. Los huéspedes también deben tener en cuenta que esta política puede estar sujeta a cambios y debe confirmarse antes de realizar la reserva. Más detalles pueden estar disponibles en esta página en la descripción de la propiedad. Sin embargo, el check-in temprano o el check-out tardío a veces se pueden negociar entre el invitado y el propietario o el gerente de esta propiedad.
La gente también pregunta
Lugares para quedarse cerca d Wonga Beach, Wonga
-
Más popular
-
Más popular
-
Precio más alto
-
El precio más bajo
-
Calificación más alta
-
Calificación más baja
- Aire acondicionado
- Estacionamiento
- Vista
- Aire acondicionado
- Estacionamiento
- Mascota amigable
- Aire acondicionado
- Estacionamiento
- Piscina
- Aire acondicionado
- Estacionamiento
- Piscina
- Aire acondicionado
- Estacionamiento
- Vista
- Aire acondicionado
- Estacionamiento
- Piscina
- Estacionamiento
- Piscina
- Balcón/Terraza
- Aire acondicionado
- Estacionamiento
- TV
- Aire acondicionado
- Estacionamiento
- Mascota amigable
- Aire acondicionado
- Estacionamiento
- Mascota amigable
- Aire acondicionado
- Estacionamiento
- TV
- Aire acondicionado
- Estacionamiento
- Piscina
- Aire acondicionado
- Estacionamiento
- Mascota amigable
- Aire acondicionado
- Estacionamiento
- TV
- Aire acondicionado
- Estacionamiento
- Piscina
- Estacionamiento
- Mascota amigable
- Piscina
- Aire acondicionado
- Estacionamiento
- Piscina
- Aire acondicionado
- Estacionamiento
- TV
- Aire acondicionado
- Estacionamiento
- Mascota amigable
- Aire acondicionado
- Estacionamiento
- Piscina
- Aire acondicionado
- Estacionamiento
- Piscina
- Aire acondicionado
- Estacionamiento
- Vista
- Aire acondicionado
- Estacionamiento
- Mascota amigable
- Aire acondicionado
- Estacionamiento
- Piscina